Công trình mang đậm phong cách kiến trúc Nhật với vườn lát sỏi, mái hơi dốc..., với rất ít đồ nội thất, tối giản mà hiện đại.
- Không thể rời mắt khỏi mẫu bàn ăn mặt đá đầy cảm hứng
- Gợi ý bàn ăn mạ PVD hiện đại cho
căn hộ, chung cư
- Trang trí nhà bếp với mẫu bàn ăn mạ vàng được nhiều
người yêu thích
- Chọn bàn ăn mạ titan làm sáng bừng không gian nhà bếp

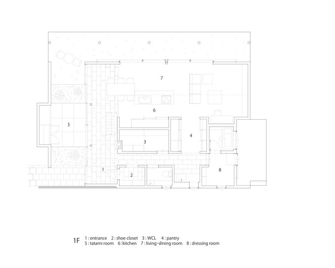
Theo Archdaily, ngôi nhà nằm ở Koka, một thành phố thuộc tỉnh Shiga, Nhật Bản do ALTS Design Office thiết kế và hoàn thành vào năm 2019. Nhà xây hai tầng, tổng diện tích sàn 139,52 m2.

Phía bắc ngôi nhà là cánh đồng với vẻ đẹp nên thơ, phía nam là những ngôi nhà xây theo kiểu truyền thống Nhật Bản.

Chủ nhà là một nghệ nhân thạch cao cùng với vợ và hai con nhỏ. Các kiến trúc sư đã giúp họ tạo ra một không gian sống giống như ngoài trời ở ngay trong nhà để tăng cảm giác gần gũi với thiên nhiên.

Dù ở vị trí nào trong nhà, gia chủ cũng có thể tận hưởng cảm giác thoải mái và bình yên do thiên nhiên bên ngoài mang lại.

Ở sân hiên nhà có một một khu vườn nhỏ mang phong cách Nhật Bản với nhiều đá sỏi lát nền. Khu vườn được ngăn cách với nhà bằng những bức tường kính khiến cảnh trí bên trong và ngoài có cảm giác như hòa vào một.

Sàn lát gạch kéo dài từ cổng và cửa nhà cũng góp phần tạo nên cảm giác hòa quyện với thiên nhiên bên ngoài.

Phòng khách gần như trống trơn với chiếc ghế sofa và một tấm thảm thể hiện rõ phong cách tối giản.

Nhà bếp được đặt chính giữa phòng khách. Ở đây có một cửa sổ dài khoảng 6m để khi mở cửa, chủ nhà cảm thấy như thể mình đang nấu ăn ngoài trời.

Phòng ăn liền kề ngay nhà bếp.

Một chậu rửa tay ở ngay sau khu vực ăn uống thể hiện sự vệ sinh sạch sẽ của người Nhật.

Nhà tắm đơn giản với tủ gỗ đựng đồ.

Nhà vệ sinh được xây tách biệt với nhà tắm theo đúng phong cách kiến trúc nhà ở Nhật Bản.

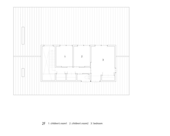
Cầu thang dẫn lên ba phòng ngủ của gia đình ở trên tầng hai.

Bản vẽ mặt bằng tầng một

Tầng hai gồm hai phòng của hai con và một phòng ngủ của bố mẹ.
Theo Thái Bình
VnExpress
Hãy Comment chuẩn SEO vừa làm tốt cho site của Bạn vừa không bị GOOGLE phạt. Nếu muốn lấy backlink hãy chèn URL không chèn code gắn text link. Biểu tượng hài hướcEmoticon