Trên lô đất 60m2, các KTS sẽ tư vấn giúp gia chủ giải pháp thiết kế ngôi nhà 2 tầng xinh xắn dành cho 4 người.
- Không thể rời mắt khỏi mẫu bàn ăn mặt đá đầy cảm hứng
- Gợi ý bàn ăn mạ PVD hiện đại cho
căn hộ, chung cư
- Trang trí nhà bếp với mẫu bàn ăn mạ vàng được nhiều
người yêu thích
- Chọn bàn ăn mạ titan làm sáng bừng không gian nhà bếp
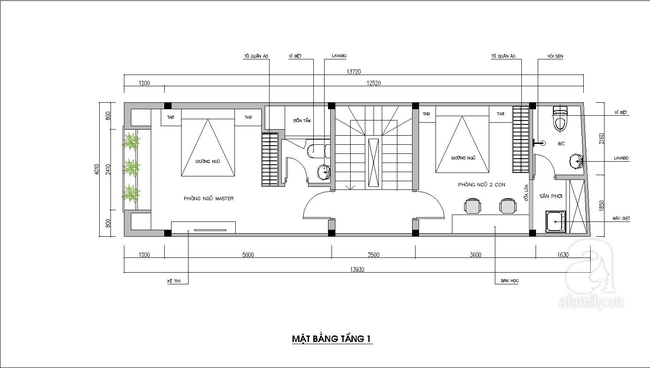
Tôi Trần Quốc Việt, sinh 1977, gia đình chỉ có vợ chồng và 2 con trai nhỏ 4 tuổi. Hiện tại tôi có lô đất 15x4, hẻm cụt 4m, hướng Tây Bắc, ở quận 9, dự kiến xây dựng 12x4 với dự kiến 1 phòng khách và bếp ăn ở tầng trệt, 2 phòng ngủ ở tầng 1 và sân thượng, 3m phía trước làm sân để xe.
Kính nhờ quý công ty xem tư vấn thiết kế nôi thất theo phong cách hiện đại hài hòa, với tông màu chủ lực là Trắng (hợp màu trắng, đỏ, vàng), với các vật tư ở mức trung bình khá, khoảng 200 triệu đồng.
Xin chân thành cảm ơn.
Kiến trúc sư tư vấn:
Ngôi nhà đẹp luôn là mơ ước của nhiều người, ai cũng muốn thiết kế cho mình một ngôi nhà phù hợp với sở thích và hợp với xu hướng của thời đại. Với yêu cầu thiết kế nhà 2 tầng trên lô đất 60m2 theo phong cách hiện đại nhưng vẫn tối ưu được chi phí. Kiến trúc sư đưa ra giải pháp thiết kế ngôi nhà với màu sắc trẻ trung, năng động và phù hợp với tính cách của gia chủ.


Ngôi nhà được thiết kế theo đúng nhu cầu sử dụng, gia đình gồm 4 thành viên là 2 vợ chồng và 2 con trai nên kết cấu ngôi nhà có 2 phòng ngủ, 1 bếp, 1 phòng khách, có sân phơi và khu vực để xe trước nhà.
Bước qua khu vực để xe là không gian phòng khách là bộ sofa trẻ trung, hiện đại với tông màu trầm dịu mát. Kết hợp với chiếc bàn trà màu trắng khiến không gian có điểm nhấn bắt mắt, không có cảm cảm giác nhạt nhòa, một màu.
Điểm nhấn của phòng khách là màu gỗ sồi với mảng tường phía sau sofa và kệ ti vi kết hợp ánh sáng vàng tạo cho không gian cảm giác ấm cúng và nhẹ nhàng. Khu vực cầu thang, KTS có bố trí hồ cá cảnh trong nhà giúp không gian luôn xanh mát và sinh động hơn.

Không gian phòng khách ấm cúng với điểm nhấn là màu gỗ sồi.

Khu vực hồ cá cảnh.
Phía bên trong là không gian phòng ăn và bếp. Với yêu cầu của chủ nhà chúng tôi đã sử dụng gỗ công nghiệp với tông màu trắng là chủ đạo, bộ bàn ăn 6 ghế với phong cách hiện đại được đặt sát tường giúp tiết kiệm diện tích. Phía cuổi nhà là phòng vệ sinh nhỏ phục vụ cho sinh hoạt chung của gia đình. Tất cả đều nhấn mạnh vào tính công năng và tiện lợi.

Phòng bếp với tủ công nghiệp sơn trắng.

Bộ bàn ăn 6 người trẻ trung, hiện đại.

Vệ sinh nhỏ phục vụ sinh hoạt chung.
Ngoài không gian sinh hoạt chung của cả gia đình là phòng khách, bếp thì phòng ngủ rất quan trọng. Không gian bên trong mỗi phòng cũng phải được thiết kế, bố trí phù hợp với từng thành viên, với ý muốn và sở thích của họ.
Phòng ngủ master luôn có được sự thông thoáng tự nhiên nhờ hệ thống cửa mở ra ban công dễ dàng đón ánh nắng và gió. Tường sơn màu trắng làm nền cho những điểm nhấn ấn tượng trong phòng .

Phòng ngủ master với màu sắc trang nhã.
Tiếp đến là không gian bên trong phòng ngủ của 2 con trai được lấy ánh sáng trực tiếp từ cửa thông phòng ra sân phơi. Không gian thông minh với hệ thống tủ quần áo, bàn học kết hợp giá sách để tiết kiệm tối đa diện tích.

Góc học tập của 2 cậu con trai.

Không gian giặt và phơi quần áo.
Theo Afamily/Helino
Hãy Comment chuẩn SEO vừa làm tốt cho site của Bạn vừa không bị GOOGLE phạt. Nếu muốn lấy backlink hãy chèn URL không chèn code gắn text link. Biểu tượng hài hướcEmoticon