Từ phòng khách, chủ nhà nhìn ra sân trước hay sau đều là một khoảng xanh ngát, như công viên thu nhỏ.
- Không thể rời mắt khỏi mẫu bàn ăn mặt đá đầy cảm hứng
- Gợi ý bàn ăn mạ PVD hiện đại cho
căn hộ, chung cư
- Trang trí nhà bếp với mẫu bàn ăn mạ vàng được nhiều
người yêu thích
- Chọn bàn ăn mạ titan làm sáng bừng
không gian nhà bếp

Ngôi nhà có quy mô của một căn biệt thự, gồm 3 tầng, bốn phòng ngủ trên tổng diện tích sàn sử dụng là 560 m².

Trước đây, miếng đất 207 m2 vốn là một căn nhà nhỏ với vườn cây bao quanh nằm tại một khu dân cư ở Hiệp Phú, quận 9. Gia chủ muốn có một nơi ở mới tiện nghi cho bốn người nhưng vẫn giữ được những cây xanh lớn từng gắn bó với gia đình.

Nhóm kiến trúc sư đã quyết định biến cây xanh trở thành một loại vật liệu của công trình. Nhà hoàn thành vào đầu năm 2018.

Nếu như cây lớn được trồng phía trước thì sau nhà là một vườn cây nhỏ nằm bên hồ nước và một hệ thống giàn cây leo, để bất kỳ không gian nào trong nhà cũng có view nhìn ra mảng xanh thiên nhiên.

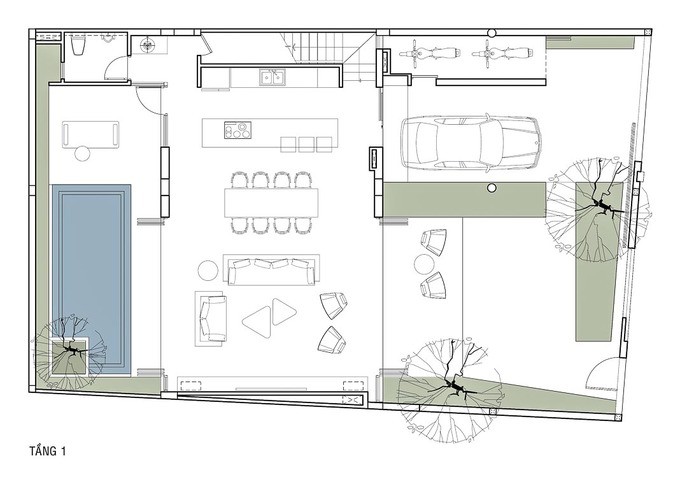
Toàn bộ tầng trệt là không gian sinh hoạt chung của gia đình với phòng khách, bếp, phòng ăn liên thông. Khi gia đình tổ chức đám tiệc đông người, gara sẽ được kết hợp lại để có một không gian rộng lớn hơn.

Ngoài bộ đèn chùm và lọ hoa nhỏ, không gian tầng một không có bất kỳ đồ trang trí nào. Hai vườn cây phía trước và sau nhà đóng vai trò như hai bức tranh phong cảnh tô điểm không gian.

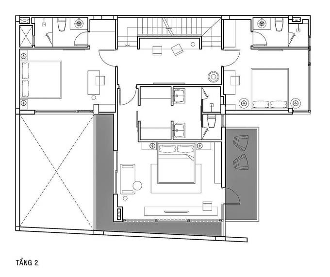
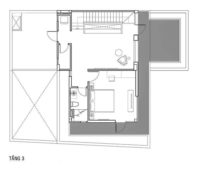
Biệt thự có bốn phòng ngủ, ba phòng được đặt tại tầng hai và một phòng ở tầng ba.

Tất cả các phòng đều có những góc tiếp cận với mảng xanh thiên nhiên bên ngoài.

Nhà vệ sinh và khu thay trang phục cũng như tất cả không gian khác trong nhà đều thể hiện được tinh thần tối giản với nội thất ít chi tiết, chủ yếu là đường thẳng, đồ đạc được cất giấu khéo léo trong các kệ kín.

Trục giao thông trong nhà cũng mang tinh thần tối giản với thiết kế gọn gàng, thuận tiện khi sử dụng.

Khoảng đệm ngay khu vực cầu thang trở thành góc sinh hoạt chung trên lầu, giúp các thành viên gia đình gắn kết với nhau hơn.

Mặt bằng tầng 1.

Mặt bằng tầng 2.

Mặt bằng tầng 3.
Theo Thái Bình
VnExpress
Hãy Comment chuẩn SEO vừa làm tốt cho site của Bạn vừa không bị GOOGLE phạt. Nếu muốn lấy backlink hãy chèn URL không chèn code gắn text link. Biểu tượng hài hướcEmoticon