Ngôi nhà trong ngõ nhỏ ở quận 1 được cây leo phủ kín các mặt trước sau và trên mái.
- Không thể rời mắt khỏi mẫu bàn ăn mặt đá đầy cảm hứng
- Gợi ý bàn ăn mạ PVD hiện đại cho
căn hộ, chung cư
- Trang trí nhà bếp với mẫu bàn ăn mạ vàng được nhiều
người yêu thích
- Chọn bàn ăn mạ titan làm sáng bừng
không gian nhà bếp

Ngôi nhà có diện tích gần 70 m2, rộng 3,9 m và sâu 17,8 m, nằm trong khu phố đông đúc ở trung tâm quận 1, TP HCM, gây ấn tượng khi cây cối phủ xanh quanh nhà.

Vị trí ngôi nhà nằm gần các tòa nhà lân cận, bị hạn chế không gian mở từ phía trước, trên và sau. Vì vậy, KTS Võ Trọng Nghĩa đã thiết kế một "tấm màn che xanh" bao phủ mặt trước, trên và sau nhà, để ánh sáng tự nhiên và không khí có thể đi vào bên trong.

"Tấm màn che xanh" này còn giúp lọc ánh sáng mặt trời, cải thiện tầm nhìn và đảm bảo an ninh, sự riêng tư, chống trộm. Tấm màn là sự kết hợp của bồn cây được đặt tại mỗi tầng, và các khung thép mạ kẽm cho dây leo.

5 khối phòng được sắp xếp so le nhau giữa hai bức tường, giúp tạo các khoảng không nhỏ dọc theo các tầng. Bằng cách này, thông gió tự nhiên sẽ diễn ra theo hiệu ứng ống khói, đồng thời, cung cấp ánh sáng gián tiếp khắp mọi không gian trong nhà.

Không gian phòng khách thoáng đãng, mát mẻ nhờ lớp cây che phía trước.

Chủ nhà là người không cầu kỳ nên nội thất trong nhà cũng rất đơn giản với đồ gỗ thô mộc.

Không gian trong phòng ngủ cũng sử dụng nội thất đồ gỗ xuyên suốt.

Lớp rèm cây có tác dụng tốt trong việc lọc không khí, vừa che chắn bụi bẩn, khiến nhà mát rượi cả ngày.

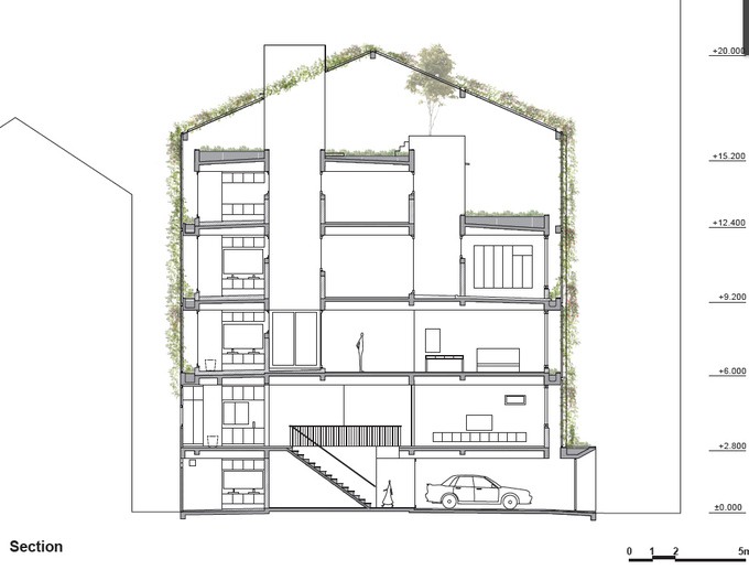
Sơ đồ mặt cắt nhà.
Theo Mộc Miên
VnExpress

Hãy Comment chuẩn SEO vừa làm tốt cho site của Bạn vừa không bị GOOGLE phạt. Nếu muốn lấy backlink hãy chèn URL không chèn code gắn text link. Biểu tượng hài hướcEmoticon