Chia làm hai khối nên ngôi nhà bên hồ nhìn từ xa không khác gì một đoàn tàu.
- Không thể rời mắt khỏi mẫu bàn ăn mặt đá đầy cảm hứng
- Gợi ý bàn ăn mạ PVD hiện đại cho
căn hộ, chung cư
- Trang trí nhà bếp với mẫu bàn ăn mạ vàng được nhiều
người yêu thích
- Chọn bàn ăn mạ titan làm sáng bừng
không gian nhà bếp

Ngôi nhà bên hồ xây một tầng, có diện tích mặt sàn 105 m2 nằm ven một thị xã nhỏ ở Đắk Lắk. Đây là nơi sinh sống của một chàng trai 8x độc thân cùng mẹ và em gái.

Chủ nhà yêu thích lối kiến trúc hiện đại, có phong cách riêng. Kiến trúc sư đã giúp anh tạo nên một ngôi nhà với hình khối lạ mắt, màu sắc hiện đại nhưng vẫn thoải mái để sinh hoạt và nghỉ ngơi.

Tường và mái đều có một phần cắt vát hình tam giác. Tường nhà sơn màu trắng mang cảm giác hiện đại và trẻ trung.

Lối đi với các bậc đá trên thảm cỏ xanh, giống như đường ray tàu, dẫn đến bậc tam cấp để vào nhà. Không gian hướng hồ được cách điệu theo kiểu nhà sàn càng khiến ngôi nhà nổi bật.

Cửa sổ nhà với nhiều hình khối khác nhau, gây ấn tượng thị giác mạnh. Đây cũng là nơi chủ nhà ngồi ngắm bình minh hay hoàng hôn trên mặt hồ.

Mặt tiền nhà hướng Tây. Để giảm nắng nóng, nhóm thiết kế đã áp dụng giải pháp hai lớp tường. Giữa hai lớp tường là hành lang chạy dài dẫn đến các phòng ngủ, cũng là nơi đặt các chậu cây xanh, vừa giảm độ nắng gắt của buổi chiều, vừa giúp trang trí nhà.

Phòng ngủ cũng như đa số các không gian khác sử dụng nhiều nội thất gỗ mang lại cảm giác ấm cúng.

Không gian sinh hoạt chung gồm phòng khách, phòng ăn và bếp được thiết kế liên thông nhau, tạo cảm giác rộng rãi cũng như tăng cường sự kết nối của các thành viên trong gia đình.

Bàn ăn bằng gỗ được đặt bên cửa sổ, giúp chủ nhà vừa tận hưởng những bữa ăn ngon vừa được dễ dàng ngắm nhìn thiên nhiên bên ngoài.

Khung cửa sổ hình tròn ở không gian sinh hoạt chung. Nơi đây được bố trí nhiều cửa sổ để lấy sáng và gió tự nhiên cũng như mang đến độ thoáng cho ngôi nhà

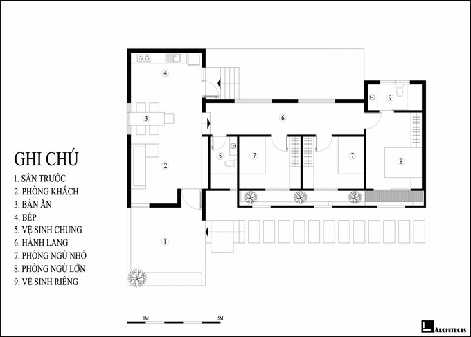
Mặt bằng bố trí theo chiều ngang khu đất nhằm hướng tối đa các phòng có view ra mặt hồ.
Hãy Comment chuẩn SEO vừa làm tốt cho site của Bạn vừa không bị GOOGLE phạt. Nếu muốn lấy backlink hãy chèn URL không chèn code gắn text link. Biểu tượng hài hướcEmoticon