Nhờ mái và tường đều hai lớp, ngôi nhà luôn xanh mát dù ở những vị trí hướng tây.
- Không thể rời mắt khỏi mẫu bàn ăn mặt đá đầy cảm hứng
- Gợi ý bàn ăn mạ PVD hiện đại cho
căn hộ, chung cư
- Trang trí nhà bếp với mẫu bàn ăn mạ vàng được nhiều
người yêu thích
- Chọn bàn ăn mạ titan làm sáng bừng
không gian nhà bếp

Ngôi nhà nằm dưới chân đồi xóm Chùa, thôn Quảng Phước, xã Đạo Nghĩa, huyện Đắk R’lấp, tỉnh Đắk Nông. Đây là nơi sinh sống hơn 40 năm của gia đình chủ nhà.

Năm 2018, họ quyết định dỡ bỏ ngôi nhà gỗ đã cũ, xây lại một ngôi nhà mới trong khi vẫn giữ nguyên khu vườn với những cây bơ, bụi tiêu và cửa hàng nhỏ bán hàng tạp hóa bên cạnh.

Vốn theo đuổi lối kiến trúc hòa hợp với thiên nhiên cùng những thiết kế hạn chế tối đa việc sử dụng máy điều hòa - kiến trúc sư đã áp dụng phong cách này cho ngôi nhà của cha mẹ mình.

Nhờ những biện pháp chống nắng nóng hướng Tây, ngôi nhà không cần lắp điều hòa, vẫn luôn mát mẻ dù ngày nắng cao điểm nhiệt độ lên tới 34 -35 độ C. Cả tháng gia đình 3 thế hệ, 7 thành viên chỉ tốn gần 300 nghìn đồng tiền điện.

Hệ lam có thể xoay ngang, xoay dọc, khi mở hết giúp người ngồi trong nhà vẫn nhìn ngắm được sân vườn và con đường phía trước nhà. Đây vừa là lớp vỏ bảo vệ trước nắng nóng phía Tây, vừa là điểm nhấn cho ngôi nhà.

Nhờ "tường hai lớp" là hệ lam gỗ và cửa kính, không gian trong nhà có thể tự điều chỉnh lượng ánh sáng và gió tiếp nhận từ bên ngoài, phù hợp với sự thay đổi của thời tiết trong ngày. Khoảng không giữa hai lớp vỏ cũng trở thành chỗ vui chơi được ưa thích của trẻ em.

Riêng khu vực tường phía Tây được làm dày hơn bình thường. Ngoài tường gạch 20 cm như các bức tường bao khác, ở đây còn được ốp đá dày thêm 10 cm, vừa làm giảm nắng nóng cho phòng ngủ bên trong, đồng thời chống nấm mốc cho mặt ngoài tường khi mùa mưa kéo dài.

Mái hiên lắp kính vươn ra ngoài 2m, chống mưa tạt đồng thời vẫn đảm bảo đủ ánh sáng tự nhiên vào trong nhà. Mái hiên kính, cửa kính, hệ lam... những chi tiết nhỏ đều góp phần giúp ngôi nhà sáng sủa vào ban ngày.

Ngoài lớp mái tôn giả ngói lợp bên ngoài như đa số các nhà xung quanh, phía trong ngôi nhà còn một lớp trần gỗ thông, ở giữa là khoảng đệm dành cho không khí. Đây vừa là giải pháp chống nóng, vừa giảm tiếng ồn khi mưa rơi xuống mái tôn, ở trong nhà chỉ nghe thấy tiếng mưa rơi rất nhỏ.

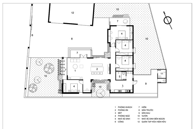
Ngoài khu vườn lớn phía trước và phía sau nhà, ở khoảng nối giữa phòng khách và phòng ngủ, bên ngoài phòng ăn còn có một khu vườn nhỏ, đảm bảo tất cả các không gian trong nhà đều có view ra vườn.

Phòng khách và phòng ăn liên thông, tạo thành một không gian rộng rãi 45m2 đáp ứng được nhu cầu thường xuyên tổ chức đám giỗ, đám tiệc.

Chủ nhà cũng như người dân địa phương có thói quen tiếp khách thân mật ở bàn ăn. Bàn ăn cũng là nơi gắn kết gia đình trong mỗi bữa cơm chung, vì thế được đặt trang trọng giữa nhà, ở khu vực kết nối giữa hai khối nhà, với mái bằng đổ bê tông.

Với quan điểm phòng ngủ cũng là nơi thư giãn, KTS. Nguyễn Thanh Tuấn không quên thiết kế view ra sân vườn cho tất cả bốn phòng ngủ.

Với người thiết kế, đây là một xu hướng kiến trúc hài hòa với điều kiện tự nhiên, một phong cách sống tối giản cho người dân quê nhà.
Hãy Comment chuẩn SEO vừa làm tốt cho site của Bạn vừa không bị GOOGLE phạt. Nếu muốn lấy backlink hãy chèn URL không chèn code gắn text link. Biểu tượng hài hướcEmoticon