Hai gia đình ở Đà Nẵng thân nhau, mua chung một khu đất. Họ xây hai ngôi nhà ở riêng biệt, nhưng nhìn ngoài, chúng như hòa vào một.
- Không thể rời mắt khỏi mẫu bàn ăn mặt đá đầy cảm hứng
- Gợi ý bàn ăn mạ PVD hiện đại cho
căn hộ, chung cư
- Trang trí nhà bếp với mẫu bàn ăn mạ vàng được nhiều
người yêu thích
- Chọn bàn ăn mạ titan làm sáng bừng
không gian nhà bếp

Ngôi nhà "hai trong một" được xây dựng trên miếng đất rộng 380 m2, nằm dưới chân núi Sơn Trà, Đà Nẵng. Nhà xây hai tầng, có tổng diện tích sàn 280 m2.

Chủ nhà là hai cặp vợ chồng trung niên vốn khá thân thiết và có nhiều điểm chung. Họ muốn sống gần nhau để có nhiều thời gian trò chuyện, chia sẻ những buồn vui của cuộc sống.

Cả hai gia đình đều rất yêu thiên nhiên, đặc biệt là núi Sơn Trà. Mỗi ngày họ đều lên đây ngắm nhìn và khám phá thiên nhiên. Vì vậy họ đã cố gắng mua đất và xây nhà ở đây để có thể dễ dàng tiếp cận với những gì mình yêu thích.

Yêu cầu của họ là xây một ngôi nhà đơn giản và hài hoà với thiên nhiên. Đặc biệt, nhà tuy sử dụng cho hai gia đình ở riêng biệt nhưng phải có chung tổng thể, nhìn bề ngoài, đây phải là một chứ không phải hai ngôi nhà.

Kiến trúc sư Tô Hữu Dũng đã quyết định thiết kế một ngôi nhà chia làm hai, có công năng giống nhau, tách biệt hoàn toàn và đối xứng nhau qua một khoảng sân vườn ở giữa.

Khoảng sân vườn này vừa là khoảng đệm mở giữa hai nhà, vừa là lối vào chính.

Từ khoảng sân vườn bước vào là phòng khách, bếp và khu vực ăn uống.

Hai phòng khách - cũng như các căn phòng khác của hai gia đình - bài trí tổng thể tương đối giống nhau nhưng vẫn có nhiều chi tiết nhỏ khác biệt.

Ngoài ra, ở tầng trệt còn có một phòng ngủ, kết nối với sân vườn bên ngoài bằng cửa kính trượt. Khi mở toàn bộ cửa kính, không gian trong nhà và sân vườn như hoà vào làm một, giúp chủ nhà tận hưởng được không gian rộng rãi và thiên nhiên núi rừng.

Tầng trên là một phòng ngủ và một ban công khá lớn được che bằng mái kính.

Từ phòng ngủ và ban công này có thể phóng tầm mắt ngắm nhìn núi Sơn Trà.

Vật liệu xây nhà chủ yếu là thép và gạch thô. Công trình vừa hoàn thành đầu năm 2019. Dọn vào nhà ở một thời gian, gia chủ cảm thấy hài lòng vì mỗi sớm mai thức dậy luôn tràn đầy năng lượng nhờ được hít thở không khí trong lành.

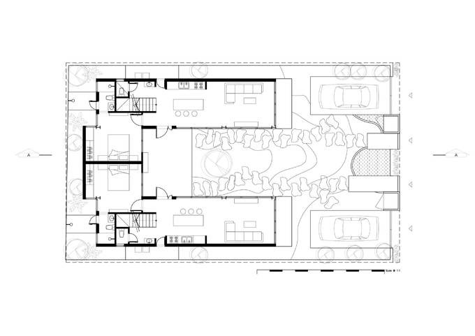
Bản vẽ mặt bằng tầng trệt.

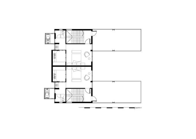
Bản vẽ mặt bằng tầng 2.

Bản vẽ mặt đứng.
Theo Thái Bình
VnExpress
Hãy Comment chuẩn SEO vừa làm tốt cho site của Bạn vừa không bị GOOGLE phạt. Nếu muốn lấy backlink hãy chèn URL không chèn code gắn text link. Biểu tượng hài hướcEmoticon