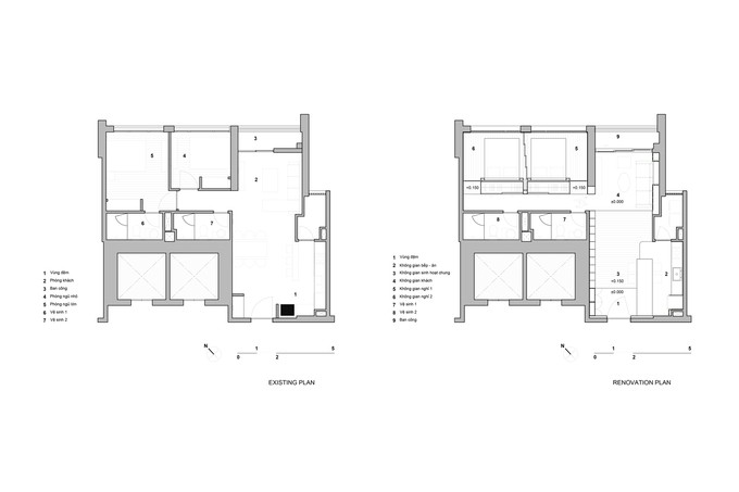
Căn hộ nguyên thủy có nhiều vách ngăn khiến không gian bị chia nhỏ. Khi sửa lại, các chức năng phòng được phân chia bằng hệ tủ, cửa lùa, cao độ sàn.
- Không thể rời mắt khỏi mẫu bàn ăn mặt đá đầy cảm hứng
- Gợi ý bàn ăn mạ PVD hiện đại cho
căn hộ, chung cư
- Trang trí nhà bếp với mẫu bàn ăn mạ vàng được nhiều
người yêu thích
- Chọn bàn ăn mạ titan làm sáng bừng
không gian nhà bếp

Căn hộ với diện tích 75 m2, nằm trên tầng 21 tại một khu đô thị có mật độ xây dựng cao ở Bình Thạnh, TPHCM. Chủ nhà mong muốn căn hộ là một không gian tiện nghi, rộng rãi, mở nhưng vẫn đầy đủ tính riêng tư khi cần thiết.

Căn hộ nguyên thủy có nhiều vách ngăn khiến không gian bị chia nhỏ và tạo cảm giác chật chội. Nhóm kiến trúc sư đề xuất phá bỏ một số bức tường, phân chia không gian chức năng mới bằng hệ thống tủ, cửa lùa, vật liệu và cao độ sàn.

Điều này tạo mối liên kết xuyên suốt giữa các không gian với nhau và với các hoạt động nhộn nhịp bên ngoài cửa sổ.

Các bức tường được bố trí những hệ kệ lớn với nhiều kích cỡ khác nhau, làm nơi lưu giữ những kỷ vật, những bức hình... của gia đình.

Bức tường cũ ngăn hai phòng ngủ được phá bỏ. Thay vào đó là hệ thống vách ngăn linh hoạt, giúp không gian có thể thu nhỏ hay mở rộng vào mỗi dịp khác nhau, theo nhu cầu của người sử dụng.

Đặc biệt, cao độ sàn thay đổi liên tục là một thủ pháp giúp phân định không gian một cách vô hình nhưng không làm mất đi liên kết tổng thể của ngôi nhà.

Không gian mở tạo nhiều khoảng trống cho trẻ nhỏ chạy nhảy và bày biện đồ chơi. Các thành viên trong gia đình cũng dễ dàng nhìn thấy và chăm sóc lẫn nhau.

Bàn ăn được thiết kế thật lớn, ngoài mục đích dành cho việc ngồi ăn còn như một đảo bếp, khắc phục nhược điểm bếp nhỏ và thiếu tiện nghi của các căn hộ chung cư thường gặp.

Hai vật liệu chính được sử dụng trong căn nhà là đá mài và gỗ tự nhiên. Toàn bộ gỗ sau khi xử lý kỹ thuật được hoàn thiện bằng phương pháp lau dầu dưỡng gỗ thay vì sơn PU. Điều này giúp giữ được vẻ đẹp tự nhiên của gỗ, bảo vệ sức khỏe cho người sử dụng đồng thời hạn chế tác động đến môi trường tự nhiên.

Đá mài mang cảm giác mát lạnh, gỗ tự nhiên tạo sự ấm áp. Sự đan xen của hai chất liệu này cũng là cách phân chia lại không gian và mang đến những trải nghiệm thú vị cho bước chân người đi.

Tổng chi phí cải tạo toàn bộ căn hộ, bao gồm phần thay đổi cấu trúc căn hộ cũ, phần xây dựng hoàn thiện và phần nội thất (kệ, tủ, bàn, giường...) là 950 triệu.

Thiết kế đẹp mắt, hiện đại của căn hộ đã được nhiều trang web về kiến trúc, thiết kế quốc tế như Architectureartdesigns, Myhouseidea đánh giá cao.
Hãy Comment chuẩn SEO vừa làm tốt cho site của Bạn vừa không bị GOOGLE phạt. Nếu muốn lấy backlink hãy chèn URL không chèn code gắn text link. Biểu tượng hài hướcEmoticon